Поддон приобретается отдельно.
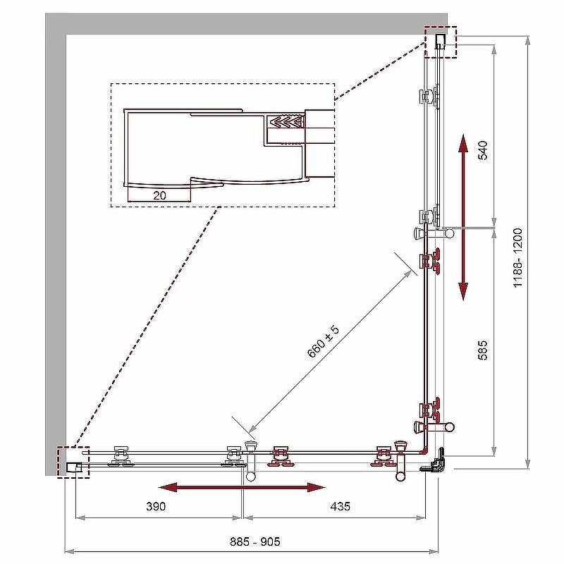
Монтаж в проём.
Возможная установка: на поддон, на пол.
Цилиндрическая петля.
Открытие двери возможно внуть и наружу.
Ресурс эксплуатации: 15 лет
Гарантия: 3 года с даты продажи, за исключением резинотехнических изделий
- на резинотехнические изделия (силиконовые уплотнители, магнитные уплотнители) 1 год с даты продажи.
Артикул UNO-B-2-120-CH-Cr
Бренд BelBagno
Длина, см 120
Высота, см 190
Страна Италия - Китай
Толщина стекла, мм 5
Поддон без поддона
Цвет стекла шиншила
Коллекция UNO
Стилистика дизайна современный стиль
Количество секций двери 2
Конструкция дверей распашная
Цвет профиля хром
Материал профиля алюминий
Регулируемая ширина да
Гарантия 3 года
Габариты с регулировками, см 118.5-121.5




