Поддон приобретается отдельно.
Монтаж в угол.
Возможная установка: на поддон, на пол.
Универсальный вариант установки.
Конструкция двери: раздвижная, двойные подшипниковые ролики.
Ресурс эксплуатации: 15 лет
Гарантия: 3 года с даты продажи, за исключением резинотехнических изделий
- на резинотехнические изделия (силиконовые уплотнители, магнитные уплотнители) 1 год с даты продажи.
Артикул UNO-195-A-2-100-C-Cr
Бренд BelBagno
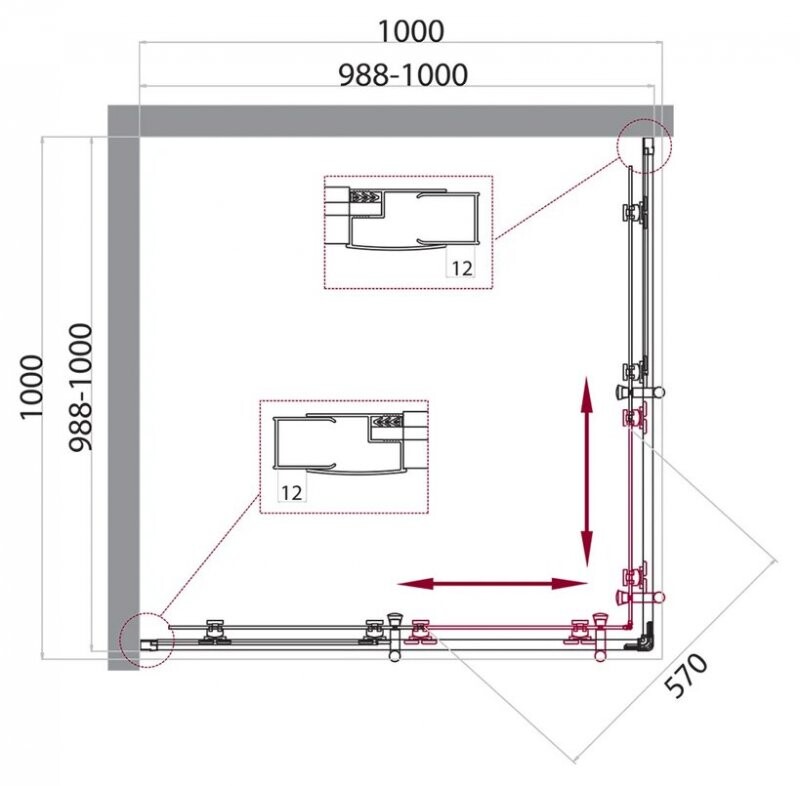
Длина, см 100
Ширина, см 100
Высота, см 195
Страна Италия - Китай
Форма квадратная
Толщина стекла, мм 5
Поддон без поддона
Цвет стекла прозрачное
Коллекция UNO
Стилистика дизайна современный стиль
Количество секций двери 2
Конструкция дверей раздвижная
Цвет профиля хром
Материал профиля алюминий
Регулируемая ширина да
Гарантия 3 года
Ширина входа, см 57
Габариты с регулировками, см (98,8-100)-(98,8-100)




