Поддон приобретается отдельно.
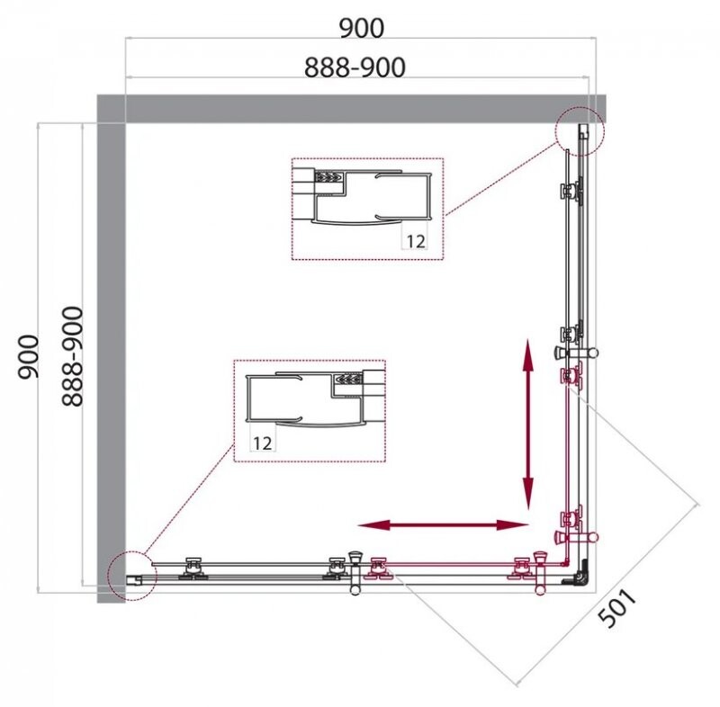
Монтаж в угол.
Возможная установка: на поддон, на пол.
Универсальный вариант установки.
Конструкция двери: раздвижная, двойные подшипниковые ролики.
Ресурс эксплуатации: 15 лет
Гарантия: 3 года с даты продажи, за исключением резинотехнических изделий
- на резинотехнические изделия (силиконовые уплотнители, магнитные уплотнители) 1 год с даты продажи.
Артикул UNO-195-A-2-90-P-Cr
Бренд BelBagno
Длина, см 90
Ширина, см 90
Высота, см 195
Страна Италия - Китай
Форма квадратная
Толщина стекла, мм 5
Поддон без поддона
Цвет стекла рифлёное
Коллекция UNO
Стилистика дизайна современный стиль
Количество секций двери 2
Конструкция дверей раздвижная
Цвет профиля хром
Материал профиля алюминий
Регулируемая ширина да
Гарантия 3 года
Ширина входа, см 50,1
Габариты с регулировками, см (88,8-90)-(88,8-90)




