Поддон приобретается отдельно.
Монтаж в угол.
Возможная установка: на поддон, на пол.
Универсальный вариант установки.
Конструкция двери: раздвижная, двойные подшипниковые ролики.
Ресурс эксплуатации: 15 лет
Гарантия: 3 года с даты продажи, за исключением резинотехнических изделий
- на резинотехнические изделия (силиконовые уплотнители, магнитные уплотнители) 1 год с даты продажи.
Артикул UNO-195-AH-2-120/100-CH-CR
Бренд BelBagno
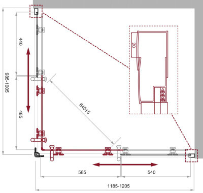
Длина, см 120
Ширина, см 100
Высота, см 195
Страна Италия - Китай
Форма прямоугольная
Толщина стекла, мм 5
Поддон без поддона
Цвет стекла шиншила
Коллекция UNO
Стилистика дизайна современный стиль
Количество секций двери 2
Конструкция дверей раздвижная
Цвет профиля хром
Материал профиля алюминий
Регулируемая ширина да
Гарантия 3 года
Ширина входа, см 64.5
Габариты с регулировками, см (118,5-120.5)х(98,5-100.5)




